5 Rue Thomas Edison, 44470 Carquefou | +33 2 40 52 99 88
0
fr
contact@lartdeloger.com 02.40.52.99.88
Télécharger la fiche
Exclusivité

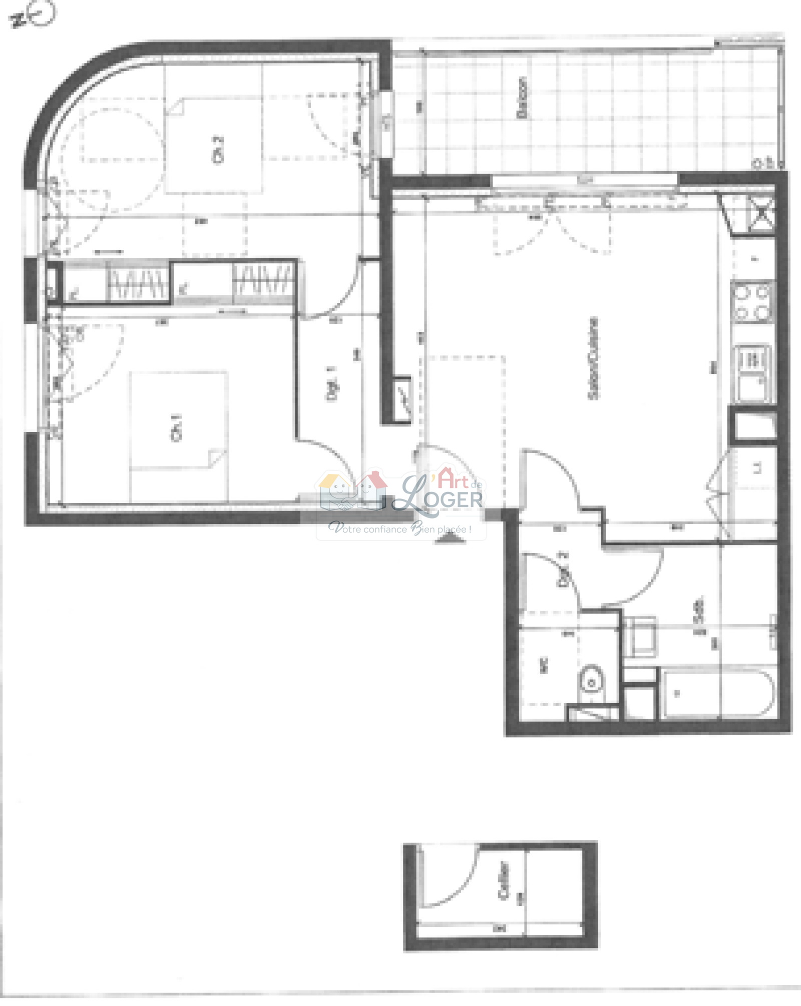
Appartement 3 pièce(s) 2 chambre(s) 63.41 m²

Thouaré-sur-Loire (44470)
222 500 € Référence 1.75

A propos de ce bien

À proximité immédiate des transports, des écoles et des commerces, découvrez cet appartement contemporain de 63m², situé dans une résidence récente (2019) alliant confort et élégance.
Dès l’entrée, un vaste séjour de 25,5m² avec cuisine aménagée et équipée invite à la convivialité. Deux belles chambres dotées de placards intégrés, une salle de bain moderne et un WC indépendant complètent l’ensemble.
Le balcon de 10m², idéalement orienté à l’Est, offre un agréable espace extérieur pour vos matinées ensoleillées.
Vous disposerez également d’un cellier privatif sur le palier et d’une place de parking sécurisée.
Un cadre de vie recherché, alliant modernité et sérénité

Idéale pour poser ses valises ou réaliser un investissement locatif !

Copropriété comprenant 73 lots dont 33 lots principaux. Charges de copropriété 100€/mois. Pas de procédure en cours.

Prix honoraires inclus à charge de l’acquéreur, 5.95% selon le barème de l’agence.

Exclusivité L'Art de Loger

Les informations sur les risques auxquels ce bien est exposé sont disponibles sur le site Géorisques : www.georisques.gouv.fr



Caractéristiques de ce bien

  • Surface 63,41 m²
  • carrez 63 m²
  • séjour 25 m²
  • 2 chambre(s)
  • 1 salle(s) de bain
  • construit en 2019
  • cuisine américaine (équipée)
  • Chauffage individuel : radiateur (gaz)
  • exposition Est
  • 3 côté(s) mitoyen(s)
  • 1er étage
  • 3 étage(s)
  • ascenseur
  • balcon
  • visiophone
  • interphone
  • accès handicapé

Diagnostics énergétiques

DPE
GES

Montant estimé des dépenses annuelles d'énergie pour un usage standard est compris entre 530 € et 760 € . Prix moyens des énergies indexés sur les années 2021, 2022 et 2023 (abonnements compris).

Informations financières

Prix de vente honoraires TTC inclus 222 500 €
Prix de vente honoraires TTC exclus 210 000 €
Honoraires TTC à la charge acquéreur 5,95 %
Charges 100 €
Taxe foncière annuelle 1 157 €

Informations de copropriété

Copropriété Oui
Lot n° 33
Nombre de lots 73
Quote part annuelle des charges 1 170 €
Plan de sauvegarde Non
Statut du syndic Procédure en cours

Calcul des mensualités

* Champs obligatoires