5 Rue Thomas Edison, 44470 Carquefou | +33 2 40 52 99 88
0
fr
contact@lartdeloger.com 02.40.52.99.88
Télécharger la fiche

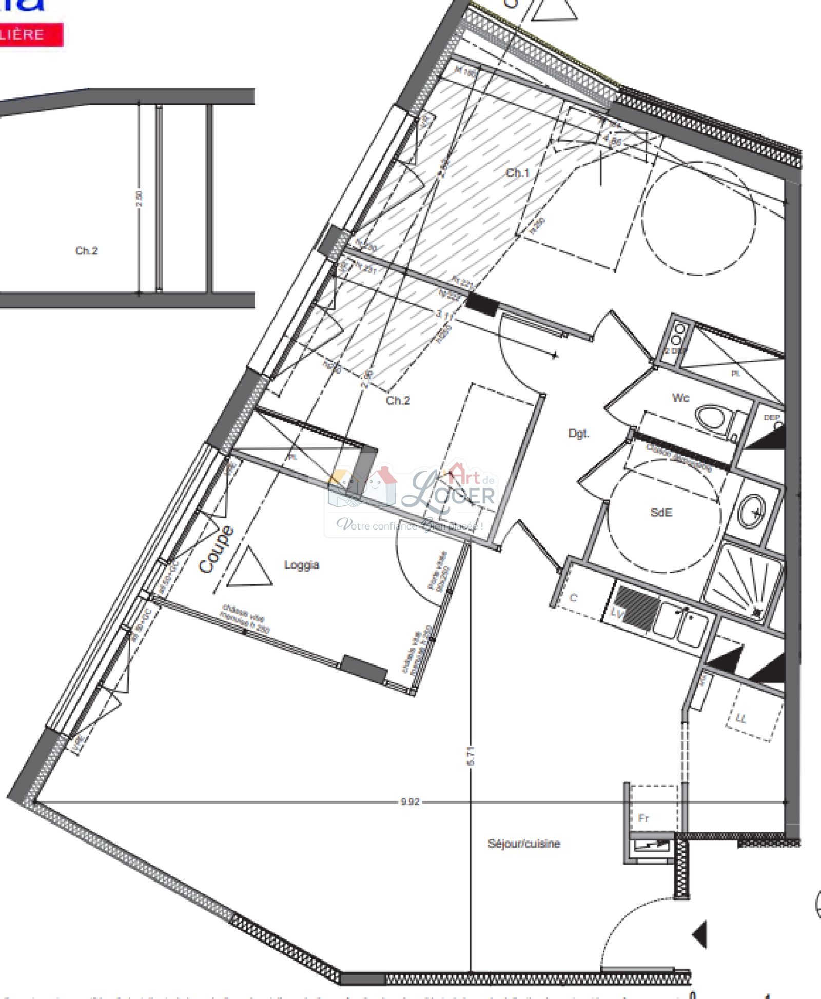
Appartement 3 pièce(s) 2 chambre(s) 70.2 m²

Nantes (44300)
1 013 € CC* * Charges comprises Référence 0035798

A propos de ce bien

NANTES Appartement Type 3,

Situé à proximité des commerces, des écoles et des transports en commun (bus et tramway), cet appartement type 3 de 70,2 m² habitables offre un cadre de vie agréable et fonctionnel.

Dans un environnement recherché, il se compose d’un séjour lumineux et d’une cuisine aménagée et équipée formant un espace de vie de 36 m². Ce séjour spacieux, ouvert sur la cuisine, donne accès à une loggia en interieur de 7 m², idéale pour profiter des beaux jours. La partie nuit comprend deux chambres confortables, dont une d’environ 15 m² avec placards intégrés, ainsi qu’une salle d’eau et un WC séparé.

En annexe, une place de parking en sous-sol vient compléter ce bien.

Eau froide, eau chaude et chauffage sont compris dans les charges !

Disponible immédiatement !

Loyer : 1013€ CC Prov sur charges/mois : 228€ ( eau chaude, froide et chauffage) avec régularisation annuelle Dépôt garantie : 785 € Honoraires : 912 € TTC à la charge du locataire dont 210 € pour état des lieux. Les informations sur les risques auxquels ce bien est exposé sont disponibles sur le site Géorisques: www.georisques.gouv.fr

Caractéristiques de ce bien

  • Surface 70,20 m²
  • 2 chambre(s)
  • 1 salle(s) d'eau
  • construit en 2019
  • cuisine américaine (semi-équipée)
  • Chauffage collectif : radiateur (gaz de ville)
  • 1 garage(s)
  • 3 côté(s) mitoyen(s)
  • 1 niveau(x)
  • ascenseur
  • balcon
  • interphone
  • accès handicapé

Diagnostics énergétiques

DPE
GES

Montant estimé des dépenses annuelles d'énergie pour un usage standard est compris entre 420 € et 630 € . Prix moyens des énergies indexés sur les années 2021, 2022 et 2023 (abonnements compris).

Informations financières

Loyer CC* / mois 1 013 €
Honoraires TTC charge locataire 912 €
Dont état des lieux 210 €
Dépôt de garantie TTC 785 €
Charges locatives (Previsionnelles mensuelles les avec regularisation annuelle) 228 €