5 Rue Thomas Edison, 44470 Carquefou | +33 2 40 52 99 88
0
fr
contact@lartdeloger.com 02.40.52.99.88
Télécharger la fiche
Exclusivité

Appartement 3 pièce(s) 2 chambre(s) 64.63 m²

Nantes (44300)
897 € CC* * Charges comprises Référence 0048621

A propos de ce bien

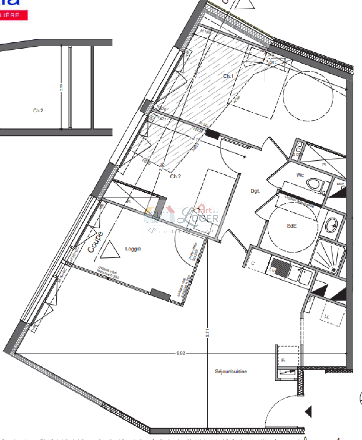
NANTES appartement Type 3,

Situé à proximité immédiate des commerces, des écoles et des transports en commun ( bus et tramway), cet agréable appartement de type T3 d’une superficie habitable de 64,63 m², offre un cadre de vie fonctionnel.

Bénéficiant d’un environnement pratique et recherché, il se compose d’une entrée avec placard aménagé ouvrant sur une belle pièce de vie de 31 m². Le séjour spacieux et la cuisine ouverte ( hotte et plaques), donne accès à un balcon de 5 m² idéal pour profiter des beaux jours. La partie nuit comprend deux chambres confortables dont une d’environ 11 m², une salle d’eau ainsi qu’un WC séparé.

En annexe vous trouverez, une place de stationnement en sous-sol qui vient compléter ce bien.

Eau chaude et chauffage compris dans les charges !

Loyer : 897€ CC Prov sur charges/mois : 180 € avec régularisation annuelle Dépôt garantie : 717€ Honoraires 839 € TTC à la charge du locataire dont 193€ pour état des lieux. Les informations sur les risques auxquels ce bien est exposé sont disponibles sur le site Géorisques: www.georisques.gouv.fr

Caractéristiques de ce bien

  • Surface 64,63 m²
  • séjour 31 m²
  • 2 chambre(s)
  • 1 salle(s) d'eau
  • construit en 2020
  • cuisine américaine (semi-équipée)
  • Chauffage collectif : radiateur (gaz de ville)
  • 3 côté(s) mitoyen(s)
  • 3ème étage
  • 6 étage(s)
  • ascenseur
  • balcon

Diagnostics énergétiques

DPE
GES
DPE ANCIENNE VERSION

Informations financières

Loyer CC* / mois 897 €
Honoraires TTC charge locataire 839 €
Dont état des lieux 193 €
Dépôt de garantie TTC 717 €
Charges locatives (provision donnant lieu à régularisation annuelle) 180 €